模具行业中的铜公电极,也称为电极,是电火花加工中不可或缺的工具,主要用于模具的型腔加工,即模具的核心关键部位。铜公电极的制作和放电加工直接影响到产品的外在效果和精度。

1. 模具市场规模:中国模具行业发展较晚,但已建立起完整的现代模具工业体系,模具工业规模和技术水平取得长足发展。2017年到2023年,中国模具行业市场规模由2937亿元增长至3589亿元。
2. 铜公电极的材料选择:紫铜电极因其导电性好和易加工性,是电火花加工中应用广泛的电极材料。石墨电极在大电流的粗加工中加工速度快,且密度小,适用于大型电极。
铜钨合金电极材料在高精密模具及一些特殊超硬合金的电火花加工中被采用,能有效抵御电火花加工时的损耗。
3. 铜公电极的加工方法:铜公电极的加工方法包括:车床加工、磨床加工、加工中心加工、线切割加工、EDM放电等,其中最常见的为CNC加工中心加工。
4. 模具电极检测:因模具行业中的铜公电极是确保加工质量的关键环节,所以一般使用三坐标测量机(CMM)对电极的尺寸进行精确测量,确保其符合设计要求。
自动化的电极检测方案更可以无缝集成到生产线中,实现在线实时检测,提高效率并减少人为错误。

Croma系列三坐标测量机凭借成熟可靠的设计与制造技术、全球零部件供应链平台和高标准的质量控制流程,实现测量过程中高稳定性和高效率。

3.1装夹方式
将电极用夹具固定(一般采用平口虎钳或自定心虎钳),尽可能的摆放平整

3.2建立坐标系
测点:电极的基准台Z方向取平面A,基准台四周取4条直线,测点如图1所示
构造:两平行线,构造中分线;两中分线构造交点
坐标系:以面A找正,并作为Z轴原点;中分线长边,作为旋转轴线;交点为XY原点



3.3验证基准元素
我们在大批量测量电极时,偶尔会遇到外在因素导致的基准偏差,从而造成一系列的测量事故和加工的损失,为避免这种情况的发生,在建立完坐标系后,我们需要将基准点重新测量并评价一次,
设定单独的上下公差,如±0.02


值得注意的是:基准的合格与否,取决于基准点是否分中(对称偏差),而不是公差范围,因为基准台的尺寸大小,并不影响后续的电火花加工,下图为两种不同的基准状态

较差:左右对称偏差0.1

较好:左右对称偏差0.1
3.4测量点的选择
确定电极的哪些部位需要测量、哪些可以忽略、哪些部位只需简单测量、哪些部位则需要细致检测,是模具测量员必须掌握的关键技能。接下来,我们将从四个关键维度来探讨模具测量点的选择方法。
可以忽略的:避空面,在放电加工时,跟工件完全脱离的位置
需要测量的:放电面,在电火花加工中,铜公(电极)与工件接触的表面
简单测量的:胶位,一般指塑胶材料在模具中成型后占据的空间,这里指的是“不重要的塑胶部位”,如:不可见的结构部分、非外观面、非承重的连接位等
细致检测的:插穿、碰穿面, 与PL面平行的公母模贴合面叫碰穿面,与PL面不平行的公母模贴合面叫插穿面。在模具闭合时,这些部分需要精确配合以确保产品的形状和尺寸

在进行测量时,应遵循两个核心原则以确保数据的充分性和准确性:
最小密度加倍:按照所需最小测量密度的1.5倍来执行测量,这样可以确保数据的完整性。例如,如果一个圆弧至少需要三个测量点,那么实际测量时应该取4到5个点。
曲率决定密度:在曲率较大的区域增加测量点的密度,而在曲率较小的区域则减少。对于多个面相交的区域以及细节变化较多的部分,应提高测量密度,以确保测量结果的全面性和精确性。
3.5测量内容和次序:
测量内容包括基准点、分型(边界)线、轮廓线、面、结构等。测量次序应遵循先难后易、先重后轻、先配合后个体、先整体后细节的原则。例如,先测量难度较大的部分,然后测量重要的部分如基准点、分型线等
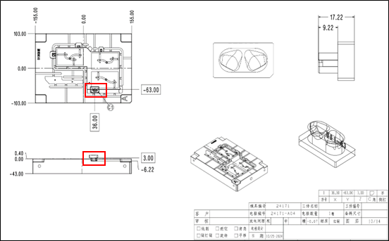
实际检测时,我们结合电火花加工阶段(EDM)的放电图,这样有助于更好的帮我们选择这个电极具体测点位置,如下图框选的地方,是放电的实际加工的位置

3.6电极的报告
电极的报告方式,一般以点轮廓的方式输出,就是我们常说的T,通常分为两部分,即基准和测点两部分

基准报告

测点报告
三坐标检测(CMM)是确保铜公电极精度的重要步骤。以下是进行三坐标检测时的检测思路、及注意事项:
4.1 测量难点
1. 复杂几何形状:
对于具复杂形状的铜公,测量点的选择和测量路径的规划可能较为困难。
2. 高精度要求:
高精度的测量要求可能需要特殊的测量设备和技巧。
3. 小尺寸和细节:
对于小尺寸和细节特征的测量可能需要高分辨率的测量设备。
4.2 检测思路:
1. 制定检测计划:
确定检测目标,选择合适的测量策略,如接触式或非接触式测量。
2. 设置基准:
确定并测量基准点,用于后续测量的参照。
3. 特征测量:
测量关键特征,如尺寸、形状、位置和轮廓。
4. 数据采集:
使用三坐标测量机采集数据,确保数据的准确性和完整性。
5. 数据分析:
分析测量数据,与设计模型进行比较,评估偏差。
6. 报告生成:
根据测量结果生成详细的检测报告。
7. 问题诊断:
如果发现偏差,分析原因并提出解决方案。
通过遵循这些检测思路、克服产品难点并注意相关事项,可以确保三坐标检测的准确性和有效性,从而提高铜公电极的加工质量。
Croma 系列三坐标测量机,具备高稳定性和高效率,被广泛的应用于汽车零部件、机械加工、模具、检具、白色家电、电动工具、农用机械,新能源汽车动力模组和自动化夹治具等行业。Croma 系列行程齐全,具备复合多传感器技术,可
返回顶部